ADAPTABLE

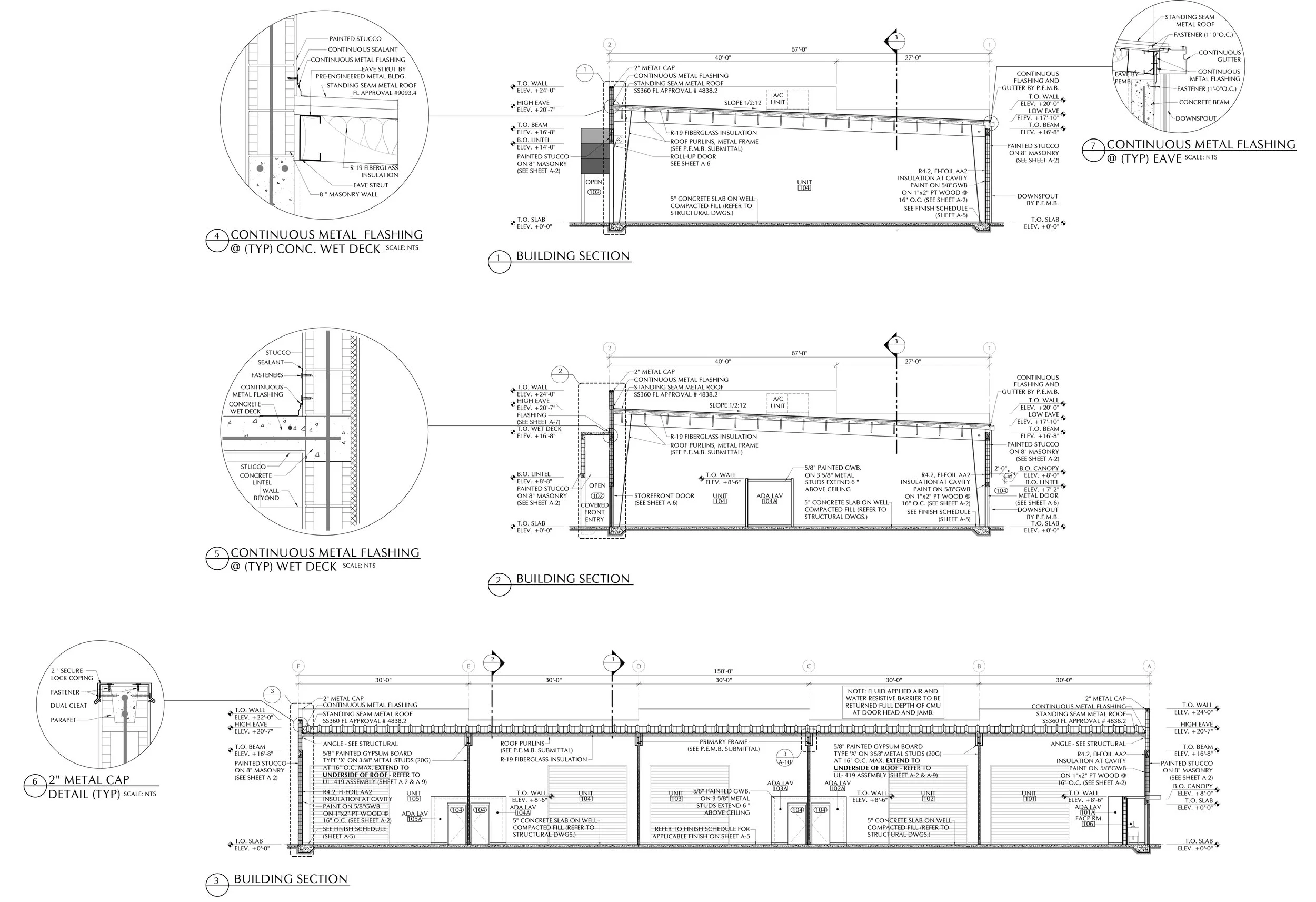
Flexible Industrial: spans up to 90’+can with rigid steel frames. PEMBs designed, shop drawings approved, steel fabricated, delivered to site, then erected, fastened, welded, and tied. Concrete masonry units form shell, with a single slope standing seam metal roof Large overhead panel doors add to versatility of access and spatial configurations. Keeping these spaces open for clients who show interest pre-construction, and will maintain the same occupancy group, eleminates the need for fire barriers, and provides a “blank-canvas” for high-yield industrial leasing. Design and CDs while with Phoenix Assoc. of SW Fl.