WAREHOUSE ADDITION

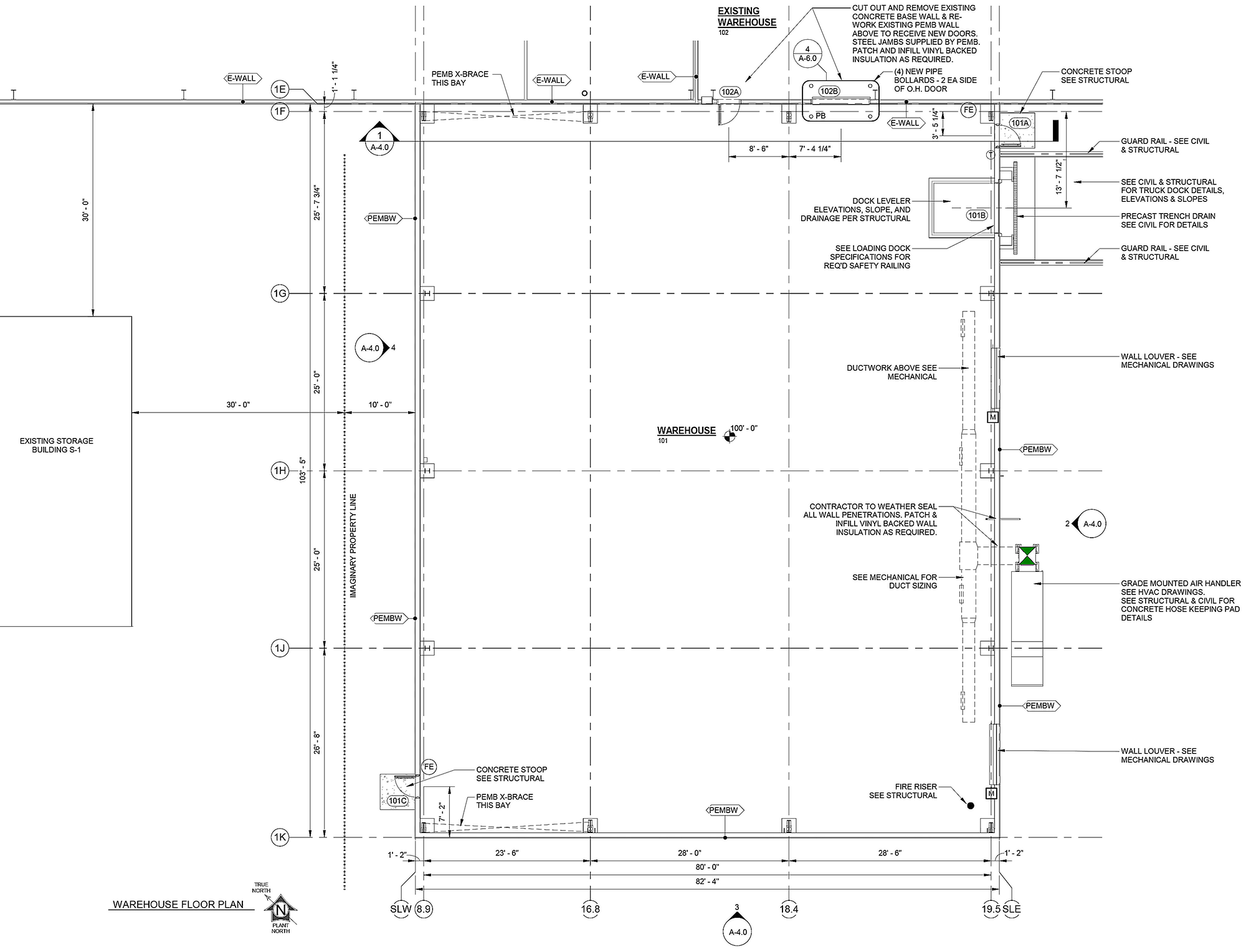
High-Piled Storage Facility: Site feasibility and shell documentation. Managed NFPA/ Life Safety constraints, balancing a mandatory 30-foot fire-separation buffer on one side with rail-spur and 45-foot truck dock logistics on the other. Coordinated heavy-load forklift aprons and bollard protection around new overhead panel door. Detailing penetrations between PEMB girt-construction and existing siding. Flashing joints for weather resistance and building movement. Integrated dock leveler safe-gaurds and stormwater drainage sumps to ensure long-term structural integrity and site-flow optimization. Design and documentation coordinating Civil, HVAC and Structural while with Matrix Technologies, Inc.

Building Code Data - International Building Code with NFPA 654 Combustible Dust Amendment. Plumbing Code, Mechanical Code, Fire Code, Electrical Code, & Model Energy Code. International Gas Fuel Code with Energy Conservation Code Amendment.IBC Chapter 3 - Use & Occupancy Classification: Proposed Addition: S-1, Moderate-Hazard Storage (fully sprinklered). Existing Separated Building: Mixed Use: F-1/ S-1. IBC Chapter 5 - Table 503: Allowable Building Height and Areas: Proposed Addition: 1 Story 8,514 SF, Existing: 1 Story 23,800 SF, Total: 1 Story 32,314 SF, Allowable: 3 Stories 35,000 SF. 508.4 Required Separation of Occupancies (Hours), 601 Fire Resistance Rating Requirements for Building Elements, 602 Construction Classification, 903 Fire Suppression, 1004.5 Maximum Floor Area Allowances Per Occupant, 1017.2 Exit Access Travel Distance