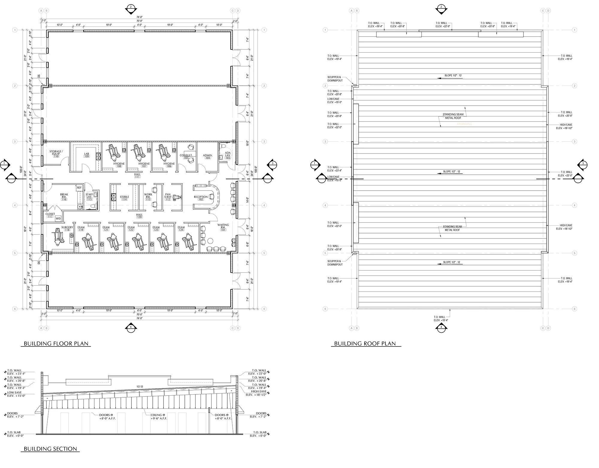
DENTISTRY

Single-story, ground-up, five unit business mercantile building. Dental (owner), to occupy center and adjacent south units combined, and lease remaining 3. Site setbacks, and sub-standard GPM water flow for fire suppresion tightened constraints on the building size and required parking. The interior of the dental units included a densely packed assortment of exam equipment. Adherence to Life-Safety and ADA guidelines for the reception and interior circulation proved to be challenging. Economy was a key factor for the client, so required DRB embellishments and details became more creative, Additionally, the interior slabs of the remaining 3 units were left un-poured for a later date. Designer, while with Phoenxi Assoc. of SW Fl.