COMMERCIAL

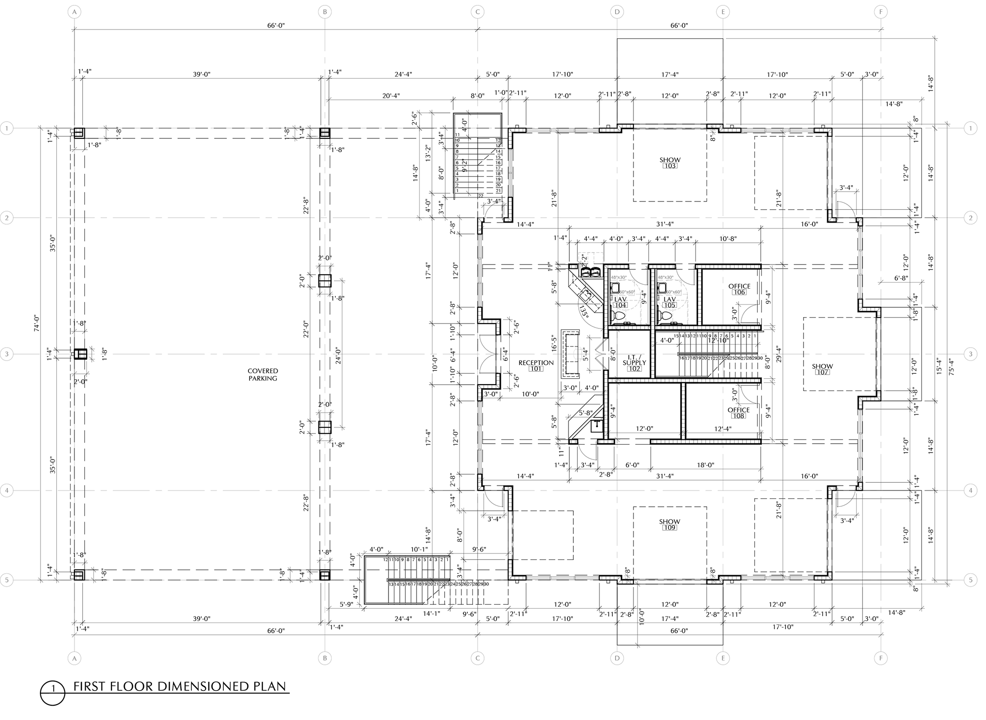
Vehicle Showroom: Two-story, stand-alone golf-cart retail bui;ding with extended second floor exterior lot. SD-CD architectural set Designer while with Phoenix Associates of SW Fl. Cover rendering by Genesis Studios.

Detail Developments: The 30’+ spans required on the interior to keep the showroom floor open required steel beams for additional support of the hollow-core concrete plank. The live loads of the 2nd floor exterior parking also required the inclusion of steel structure. The extra height these steel members added ended up working out wiith 2 other situations - slope needed to create stormwater sheet flow to the guttersl on the west ended, required the structure to be raised for a 14’ clearance height below for fire trucks.