STEEL PLANT

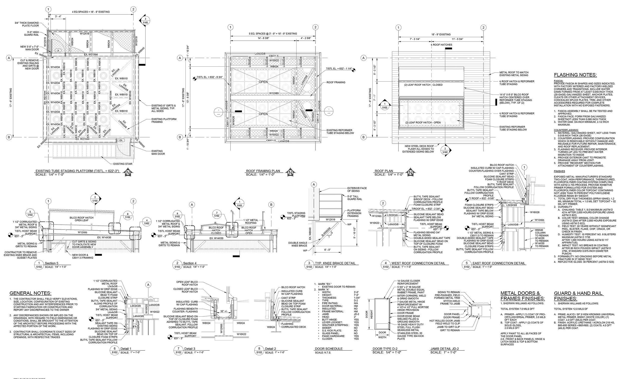
High-Temperature Steel Tube Reformer: Specialized thermal enclosure handling extreme-temperatures during steel tube chemical reforming. Process re-design to speed-up production with bi-folding motorized roof hatches to allow guidance and insertion of crane-loaded reformer tubes. Openings over-sized for maximum clearance while maintaining walkable maintenace access between. New roof sloped to minimize snow loads. This new design replacing old method of crane-hoisting the entire roof to gain access per cycle. Additionally. a door opening was included, leading out to a new blacony that would serve as a storage/ staging area for the large chemical-filled drums. Design and Documentation of Architectural and Structural sytems while with Matrix Technologies Inc.