STARCH PLANT

Process & Bagger Tower: "Multi-Hazard" Case Study80’ Multi-story documentation & NFPA 654 compliance. High-Hazard Life Safety Navigation & Combustible Dust Mitigation. Full-Scale Facility Integration. Extreme temperature, surge-bin, and process piping obstructions. Navisworks coordination using LiDAR Point Cloud data for precise structural and roof-penetration alignment within existing warehouse footprint. The Detail: Developed sloped "dust-shedding" structural transitions and negative-pressure seals to prevent dust accumulation. Designed multi-sloped "sheet-flow" sanitary slabs beneath live conveyors to ensure FDA-level wash-down efficiency without compromising existing 50-year-old structural integrity. Designer, while with Matrix Technologies Inc

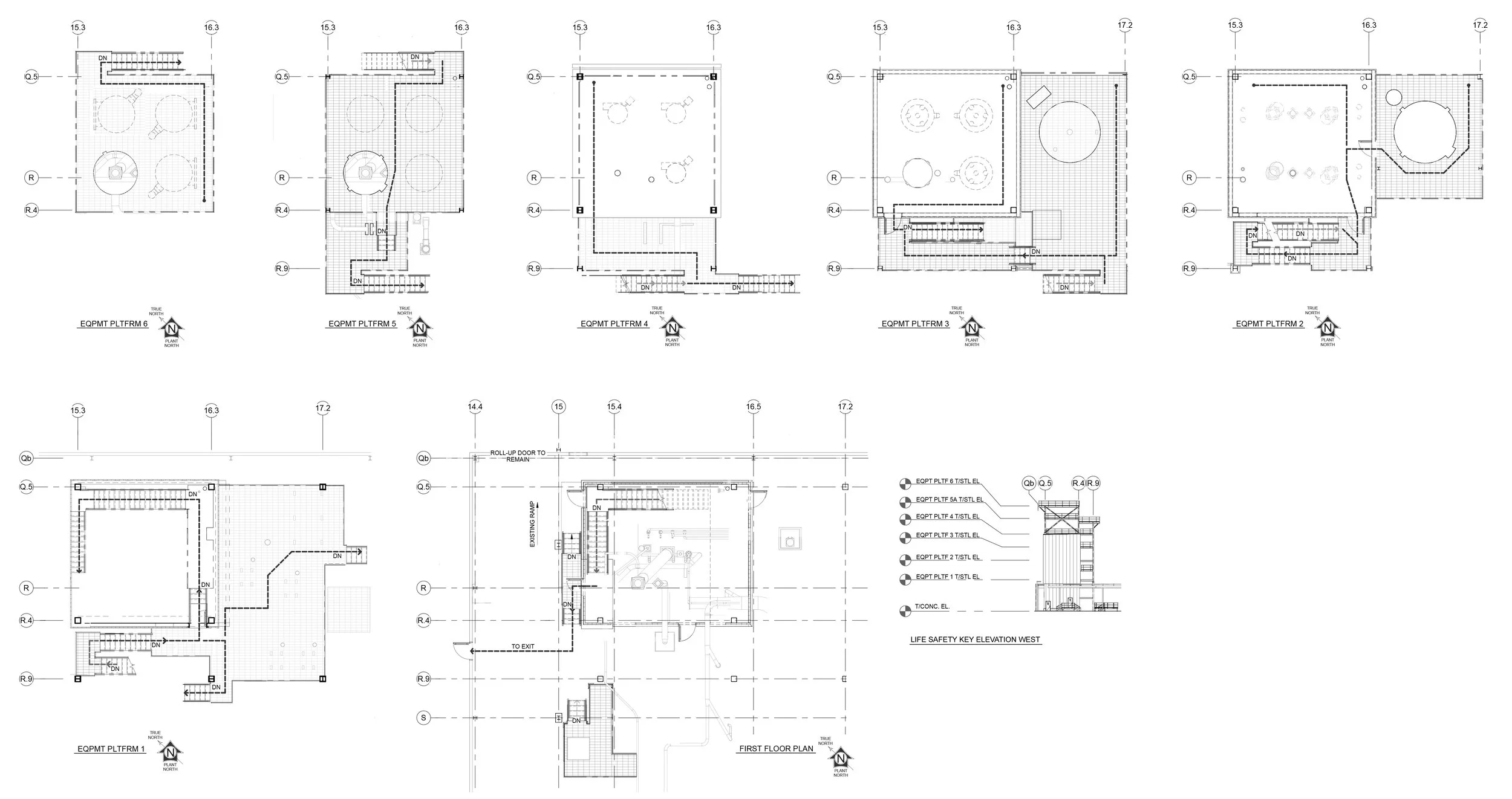
Complex Systems Coordination: Interior view of the tower showing the integration of life-safety egress (stairs/ platforms) with high-density process equipment and piping - large surge-bins, hopper, bagger, de-seration, dust collector, conveying and palletizing systems..

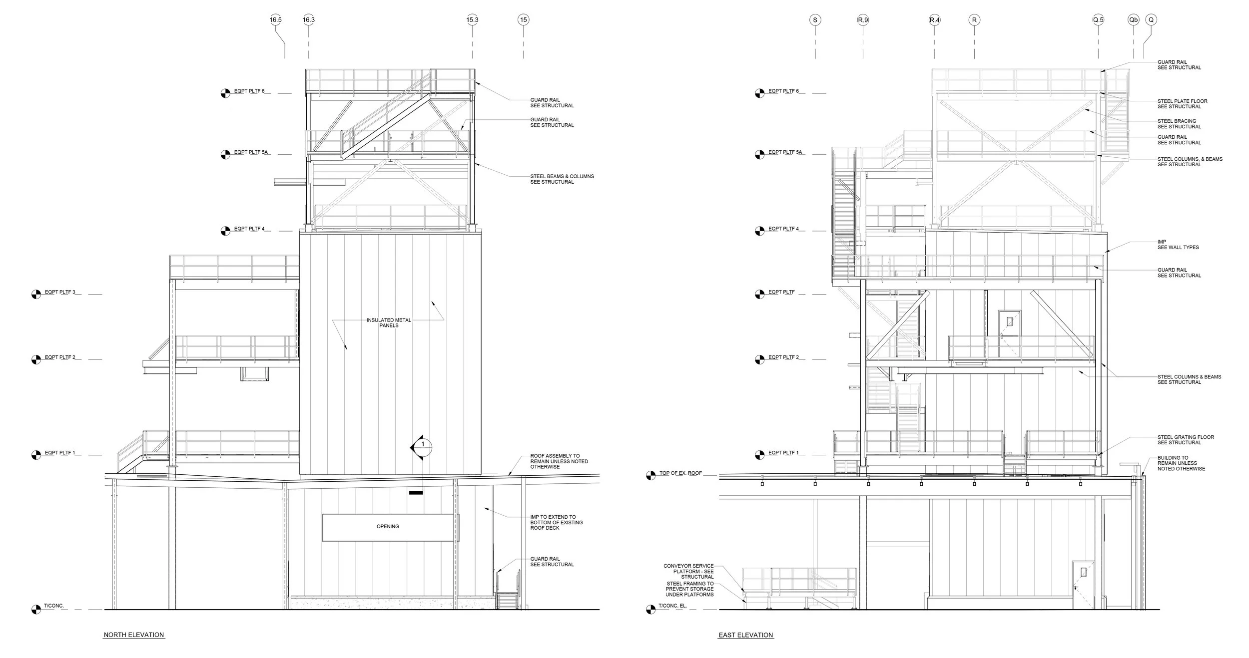
Multi-Phase Plans & Elevations: Coordinated architectural shell showing NFPA-compliant egress, specialized process penetrations, and structural interface with the existing facility envelope.

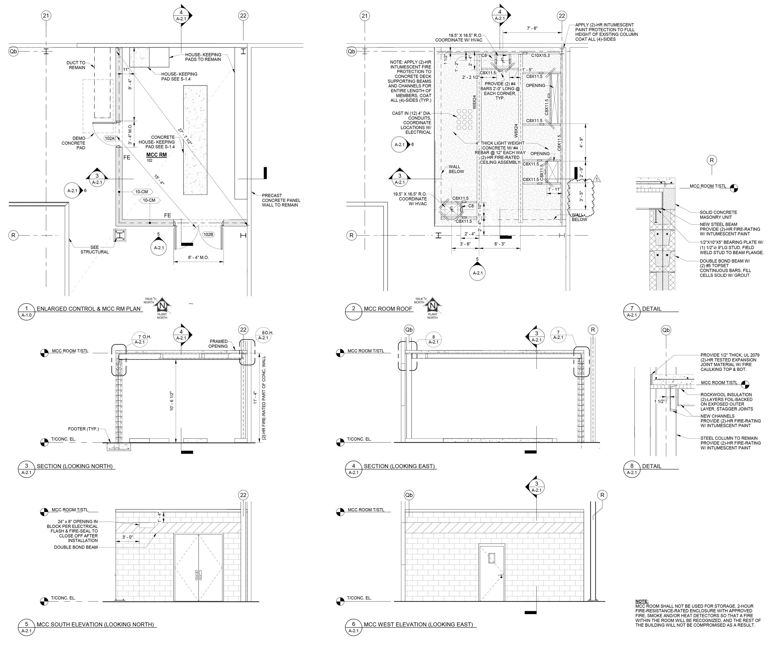
Motor Control Center (MCC) Integration: High-density clash-free coordination of a concrete enclosure within an existing structural grid. Managed 20+ pre-pour slab penetrations and maintenance clearances for electrical switchgear while utilizing Point Cloud data to integrate new housekeeping pads and fire-rated assemblies into the existing warehouse footprint. DD & CD phase with Structural, Electrical & HVAC while with Matrix Technologies Inc.